
Platz für
Ihren Haustraum
in Suttorf
Baugebiet Suttorf - Willkommen in Ihrem Traumhaus

Das schöne Suttorf ist ein Ortsteil von Neustadt am Rübenberge.
Neustadt am Rübenberge liegt nordöstlich vom Steinhuder Meer und zählt mit seinen 34 Stadtteilen zu den flächengrößten Städten in Deutschland. In der Kernstadt leben ca. 19.000 Einwohner.
Die Stadt verfügt über eine gute Infrastruktur. Dazu gehören Kindergärten, Schulen, Ärzte sowie ein Krankenhaus, Sportvereine, diverse Einkaufsmöglichkeiten, Restaurants und ein zentraler Bahnhof.
Mit der S2 oder dem Regionalzug besteht eine schnelle Verbindung in Richtung Hannover und Bremen. Über die B6 erreichen Sie Hannover oder Nienburg in ca. 25 Minuten. Durch eine zügige Verbindung zur A2, die in nur 15 Minuten erreichbar ist, sind Sie wenige Minuten vom Flughafen entfernt.
Die Fußgängerzone und auch die Leine-Auen laden zum Spazieren und Verweilen ein. Das in unmittelbarer Nähe befindliche Naherholungsgebiet "Steinhuder Meer" lässt ebenfalls eine vielfältige Freizeitgestaltung zu.
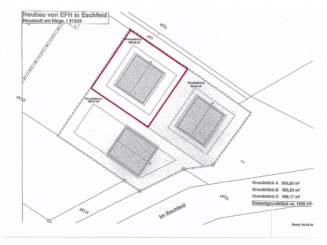
Die wichtigsten Informationen zu den Baugrundstücken Suttorf
- 2 Grundstücke
- Größe: 384 & 469qm
- Preis: 300€/m²
- 2 Vollgeschosse erlaubt
Ihre Town & Country Haus Vollausstattung:
- Wärmepumpe: Heute bereits an Morgen denken - in jedem Haus ist eine Wärmepumpe inklusive.
Sie erfüllen die aktuellen Energiestandards, sparen bares Geld und reduzieren Ihren CO2-Fußabdruck. - Massiv gebaut und gedämmt: Wir setzen auf massives Mauerwerk. Das schont nicht nur Ressourcen und Ihr Budget, sondern dämmt auf ganz natürlichem Weg und ohne schädliches Styropor.
- Fußbodenheizung: Warme Füße? Auch die Fußbodenheizung ist inklusive. Sie steigert nicht nur den Wert Ihres Hauses, sondern sorgt ganz nebenbei noch für echtes Wohngefühl.
- Vorrüstung E-Auto: Wir denken nicht nur mit, sondern setzen auch direkt um.
Alle unsere Häuser haben eine E-Auto Vorrüstung. Damit sind sie mobil, flexibel und bleiben beweglich. - Rollläden: Ihr Haus sorgt nicht nur für ausreichend Sicherheit, sondern auch für einen sommerlichen Wärmeschutz.
Bereits inklusive sind die Rollläden. - Vorrüstung Photovoltaik: Auch wenn es um Energie geht, können Sie sich sicher sein.
Mit der Photovoltaik-Vorrüstung bleiben Sie flexibel und machen sich unabhängig von steigenden Energiepreisen. Dann, wenn Sie es wollen. Ausreichend Platz für einen Energiespeicher bietet Ihr Hausanschlussraum. - Sanitärausstattung: Ihre Badezimmer sind voll ausgestattet. Dazu gehört auch eine bodengleiche Dusche.
- Elektroausstattung: Wir bieten Ihnen ein wenig mehr.
Ihre Haustechnik sorgt für einen energiegeladenen Alltag, behagliche Wärme und umweltschonendes Wohnvergnügen. - Schlüsselfertig: Ihr Haus wird Ihnen, am Ende der Bauzeit, schlüsselfertig übergeben.
Sie richten sich ganz nach Ihrem Geschmack ein. - Sicher gebaut: Ihr persönlicher Hausbau-Schutzbrief schützt Sie mit einem garantierten Festpreis,
einer Bauzeitgarantie und transparenten Baukosten.
Ein kleiner Blick auf die Baugrundstücke







